thiết kế nhà đẹp

Home Blog thiết kế nhà đẹp
Khám phá màu sắc táo bạo cho khung cửa: Tạo điểm nhấn độc đáo cho ngôi nhà

Khám phá màu sắc táo bạo cho khung cửa: Tạo điểm nhấn độc đáo cho ngôi nhà

Vân Anh Nguyễn Thị
9 Tháng 10, 2025
Mục lục Giới thiệu Tại sao nên chọn màu sắc táo bạo cho khung cửa? Gợi ý màu sắc khung cửa độc đáo và táo bạo Cặp màu trắng và đen: Thanh lịch vượt thời gian Đỏ anh đào: Điểm nhấn cá tính Vàng tươi: Tuyên ngôn phong cách táo bạo Xanh dương: Nổi bật […]
Lâu Đài Lan Khoa Khuê: Kiến Trúc Độc Đáo và Tâm Huyết của Đại Gia Nam Định

Lâu Đài Lan Khoa Khuê: Kiến Trúc Độc Đáo và Tâm Huyết của Đại Gia Nam Định

Vân Anh Nguyễn Thị
9 Tháng 10, 2025
Mục Lục Giới Thiệu về Lâu Đài Lan Khoa Khuê Kiến Trúc Độc Đáo và Lộng Lẫy Nội Thất Sang Trọng và Tinh Tế Khuôn Viên Xanh Mát và Nghệ Thuật Tâm Huyết và Câu Chuyện Đằng Sau Lâu Đài Điểm Đến Nổi Tiếng và Sự Ghi Nhận Kết Luận Giới Thiệu về Lâu Đài […]
Ngôi nhà giữa rừng cây tùng bách: Sự hòa quyện giữa kiến trúc và thiên nhiên

Ngôi nhà giữa rừng cây tùng bách: Sự hòa quyện giữa kiến trúc và thiên nhiên

Vân Anh Nguyễn Thị
9 Tháng 10, 2025
Mục lục 1. Giới thiệu về ngôi nhà giữa rừng cây tùng bách 2. Ý tưởng thiết kế độc đáo 3. Vật liệu tự nhiên và bền vững 4. Không gian sống hòa mình vào thiên nhiên 5. Các chi tiết kiến trúc nổi bật 6. Ngôi nhà dành cho ai? 7. Kết luận 8. […]
Felderhof: Ngôi nhà Ý hòa mình vào thiên nhiên – Kiến trúc độc đáo và bền vững

Felderhof: Ngôi nhà Ý hòa mình vào thiên nhiên – Kiến trúc độc đáo và bền vững

Vân Anh Nguyễn Thị
7 Tháng 10, 2025
Mục lục Giới thiệu về Felderhof – Ngôi nhà hòa mình vào thiên nhiên Ý Kiến trúc độc đáo và bền vững Vật liệu thân thiện với môi trường Không gian sống rộng rãi và thoáng đãng Nội thất tối giản và tinh tế Tầm nhìn tuyệt đẹp ra dãy Dolomites Kết luận Giới thiệu […]
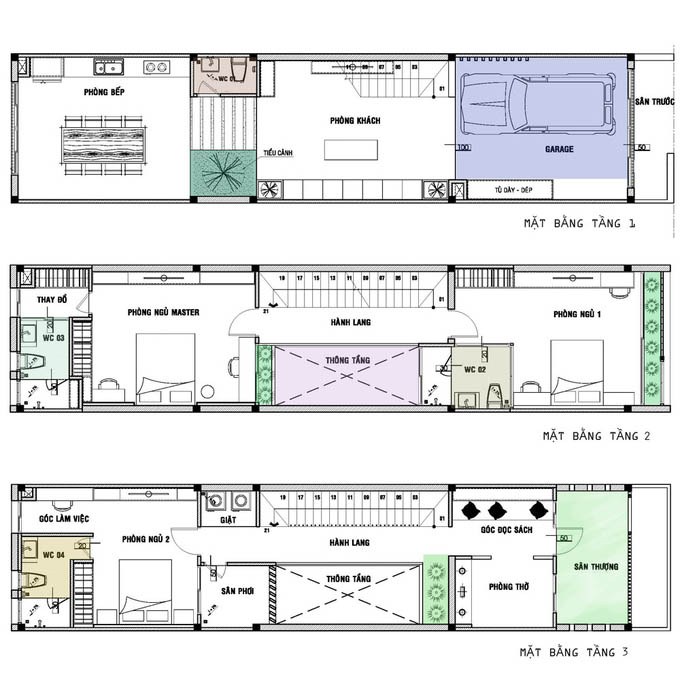
Tư Vấn Thiết Kế Nhà Ống 4 Tầng Đẹp Cho Gia Đình Nhiều Thế Hệ

Tư Vấn Thiết Kế Nhà Ống 4 Tầng Đẹp Cho Gia Đình Nhiều Thế Hệ

Vân Anh Nguyễn Thị
5 Tháng 10, 2025
Tối Ưu Không Gian Sống: Tư Vấn Thiết Kế Nhà Ống 4 Tầng Cho Gia Đình Việt Bạn đang sở hữu một mảnh đất hẹp và mong muốn xây dựng một tổ ấm 4 tầng đầy đủ tiện nghi cho gia đình có 2 vợ chồng, 2 con và bà ở cùng? Bài viết này […]
Lâu đài Thành Thắng: Khám phá kiến trúc xa hoa bậc nhất Ninh Bình

Lâu đài Thành Thắng: Khám phá kiến trúc xa hoa bậc nhất Ninh Bình

Vân Anh Nguyễn Thị
4 Tháng 10, 2025
Khám phá Lâu đài Thành Thắng Ninh Bình: Biểu tượng xa hoa giữa lòng cố đô Mục lục: 1. Giới thiệu về Lâu đài Thành Thắng 2. Kiến trúc độc đáo: Hòa trộn giữa phương Tây và bản sắc Việt 2.1. Ngoại thất tráng lệ 2.2. Điểm nhấn mái vòm 3. Nội thất xa hoa: […]
Showing 7 to 12 of 118 results
Showing 7 to 12 of 118 results
© 2016 Công ty Cổ Phần BĐS An Phát. All rights reserved.