Thiết Kế Nhà 3 Tầng 1 Tỷ: Giải Pháp Tối Ưu Cho Gia Đình Trẻ
Thiết Kế Nhà 3 Tầng 1 Tỷ: Giải Pháp Tối Ưu Cho Gia Đình Trẻ
Bạn đang ấp ủ ước mơ về một ngôi nhà 3 tầng khang trang, tiện nghi nhưng ngân sách lại có hạn? Đừng lo lắng! Với 1 tỷ đồng, bạn hoàn toàn có thể sở hữu một không gian sống lý tưởng nếu có phương án thiết kế thông minh và lựa chọn vật liệu phù hợp. Bài viết này sẽ chia sẻ một gợi ý thiết kế nhà 3 tầng với chi phí dự kiến 1 tỷ đồng, tập trung vào công năng sử dụng, tính thẩm mỹ và tối ưu không gian cho gia đình trẻ.
Mục Lục
- Tổng Quan Thiết Kế
- Mặt Bằng Chi Tiết
- Gợi Ý Thiết Kế Nội Thất
- Chi Phí Dự Kiến
- Lưu Ý Khi Thiết Kế Và Thi Công
1. Tổng Quan Thiết Kế
Thiết kế nhà 3 tầng 1 tỷ này hướng đến sự đơn giản, hiện đại và tối ưu hóa không gian. Ngôi nhà được bố trí công năng hợp lý, đảm bảo sự thông thoáng, ánh sáng tự nhiên và tiện nghi cho các thành viên trong gia đình. là một trong những yếu tố quan trọng hàng đầu. Với diện tích không quá lớn, việc tận dụng tối đa không gian theo chiều cao là giải pháp hiệu quả.

Mẫu thiết kế nhà ống 3 tầng hiện đại.
2. Mặt Bằng Chi Tiết
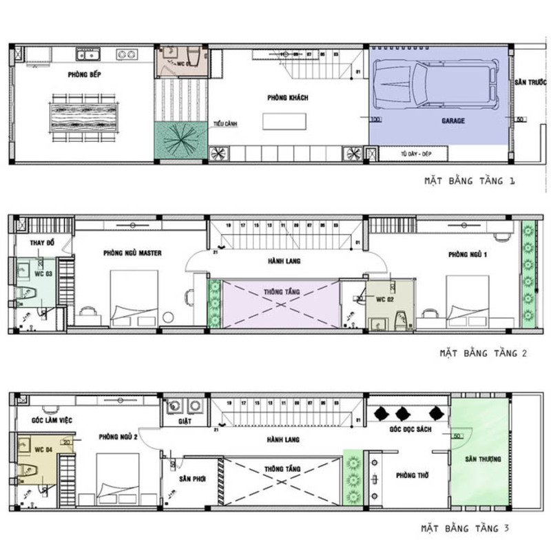
Mặt bằng được chia thành 3 tầng với các chức năng riêng biệt, đảm bảo sự riêng tư và thoải mái cho các thành viên trong gia đình.
2.1. Tầng 1: Gara, Bếp, Phòng Ăn, WC
Tầng 1 được bố trí gara để xe, khu vực bếp và phòng ăn liên thông, tạo không gian sinh hoạt chung rộng rãi. Một WC nhỏ được đặt ở vị trí kín đáo, tiện lợi cho việc sử dụng.

Mặt bằng bố trí công năng tầng 1.
- Gara: Thiết kế đủ rộng để đỗ xe ô tô và xe máy, có cửa cuốn an toàn.
- Bếp: Sử dụng tủ bếp chữ L hoặc chữ I để tiết kiệm diện tích, trang bị đầy đủ thiết bị cơ bản như bếp từ, máy hút mùi, chậu rửa.
- Phòng ăn: Bàn ăn nhỏ gọn, đủ cho 4-6 người.
- WC: Bố trí dưới gầm cầu thang hoặc góc khuất để tiết kiệm diện tích.

Gara ô tô bên trong nhà

Thiết kế phòng bếp nhỏ gọn và hiện đại.

Nhà vệ sinh dưới gầm cầu thang để tiết kiệm diện tích.
2.2. Tầng 2: Phòng Khách, Phòng Ngủ Khép Kín
Tầng 2 là không gian sinh hoạt riêng tư với phòng khách và phòng ngủ master khép kín, đảm bảo sự thoải mái và tiện nghi cho gia chủ.

Mặt bằng bố trí công năng tầng 2.
- Phòng khách: Thiết kế đơn giản, hiện đại với sofa, bàn trà, kệ tivi. Tận dụng tối đa ánh sáng tự nhiên.
- Phòng ngủ master: Có WC riêng, giường đôi, tủ quần áo và bàn trang điểm.

Phòng khách hiện đại, sang trọng.

Phòng ngủ master khép kín.
2.3. Tầng 3: Phòng Ngủ, Phòng Thờ, Sân Phơi
Tầng 3 bao gồm một phòng ngủ, phòng thờ và sân phơi. Phòng thờ nên được đặt ở vị trí trang trọng, yên tĩnh. Sân phơi có thể kết hợp làm khu vực trồng cây xanh, tạo không gian thư giãn.

Mặt bằng bố trí công năng tầng 3.
- Phòng ngủ: Thiết kế tương tự phòng ngủ master nhưng diện tích nhỏ hơn.
- Phòng thờ: Đặt ở vị trí cao nhất, trang trọng, yên tĩnh.
- Sân phơi: Tận dụng làm khu vực trồng cây xanh, tạo không gian thư giãn.

Phòng thờ trang trọng, ấm cúng.

Sân phơi kết hợp không gian xanh.
3. Gợi Ý Thiết Kế Nội Thất
Lựa chọn phong cách nội thất tối giản, hiện đại để tiết kiệm chi phí và tạo không gian thông thoáng.
3.1. Phòng Khách
- Sử dụng sofa góc hoặc sofa văng đơn giản.
- Bàn trà nhỏ, gọn.
- Kệ tivi treo tường hoặc kệ tivi đa năng.
- Màu sắc tươi sáng, trung tính kết hợp với điểm nhấn.

Nội thất phòng khách tối giản, hiện đại.
3.2. Phòng Bếp
- Tủ bếp chữ L hoặc chữ I để tiết kiệm diện tích.
- Sử dụng vật liệu gỗ công nghiệp hoặc acrylic.
- Bàn ăn nhỏ gọn, có thể gấp gọn.
- Màu sắc tươi sáng, tạo cảm giác sạch sẽ.

Phòng bếp nhỏ gọn, tiện nghi.
3.3. Phòng Ngủ
- Giường ngủ đơn giản, có ngăn kéo để đồ.
- Tủ quần áo cánh lùa hoặc tủ quần áo âm tường.
- Bàn trang điểm nhỏ gọn.
- Màu sắc nhẹ nhàng, tạo cảm giác thư giãn.

Thiết kế phòng ngủ nhỏ, đầy đủ tiện nghi.
3.4. Phòng Tắm/WC
- Sử dụng gạch ốp lát sáng màu.
- Thiết bị vệ sinh đơn giản, tiết kiệm nước.
- Vách kính tắm đứng để ngăn cách khu vực khô và ướt.
- Tận dụng không gian dưới bồn rửa để đồ.

Phòng tắm hiện đại, tiện nghi.
3.5. Phòng Thờ
- Bàn thờ gỗ tự nhiên.
- Đèn thờ ấm cúng.
- Tranh thờ hoặc tượng Phật.
- Không gian yên tĩnh, trang trọng.

Phòng thờ trang nghiêm, ấm cúng.
3.6. Sân Thượng/Sân Phơi
- Trồng cây xanh, rau sạch.
- Bàn ghế nhỏ để thư giãn.
- Hệ thống thoát nước tốt.
- Tường rào an toàn.

Sân thượng xanh mát, thư giãn.
4. Chi Phí Dự Kiến
Chi phí xây nhà 3 tầng 1 tỷ có thể được phân bổ như sau (đây chỉ là ước tính, chi phí thực tế có thể thay đổi tùy thuộc vào vật liệu, nhân công và địa điểm):
- Phần thô: 400 – 500 triệu đồng.
- Hoàn thiện (gạch, sơn, thiết bị vệ sinh, điện nước): 300 – 400 triệu đồng.
- Nội thất (sofa, bàn ghế, giường, tủ): 200 – 300 triệu đồng.
Lưu ý:
- Chi phí này chưa bao gồm chi phí thiết kế và xin phép xây dựng.
- Nên dự trù thêm khoảng 10-15% cho các chi phí phát sinh.
5. Lưu Ý Khi Thiết Kế Và Thi Công
- Lựa chọn đơn vị thiết kế và thi công uy tín: Điều này đảm bảo chất lượng công trình và tránh phát sinh chi phí ngoài ý muốn.
- Lên kế hoạch chi tiết: Xác định rõ nhu cầu sử dụng, phong cách thiết kế và ngân sách để có phương án tối ưu.
- Chọn vật liệu phù hợp: Ưu tiên vật liệu chất lượng, bền đẹp và có giá thành hợp lý.
- Giám sát chặt chẽ quá trình thi công: Đảm bảo công trình được thực hiện đúng theo bản vẽ thiết kế và tiến độ đã đề ra.
- Tận dụng tối đa ánh sáng tự nhiên và thông gió: Giúp tiết kiệm năng lượng và tạo không gian sống thoải mái.
Với những gợi ý trên, hy vọng bạn sẽ có thêm ý tưởng để thiết kế ngôi nhà 3 tầng 1 tỷ mơ ước của mình. Đừng ngần ngại liên hệ với AnPhatLand để được tư vấn và hỗ trợ chi tiết hơn!