Tư Vấn Thiết Kế Nhà Cấp 4 Đẹp 5×14.5m Giá Rẻ Cho Gia Đình Trẻ
Thiết Kế Nhà Cấp 4 Đẹp, Chi Phí Thấp 5×14.5m Cho Gia Đình Trẻ
Mục Lục
- Giới thiệu
- Yêu cầu thiết kế
- Giải pháp thiết kế nhà cấp 4 5×14.5m
- Lưu ý khi thiết kế và thi công
- Dự toán chi phí xây dựng
- Các mẫu nhà cấp 4 đẹp diện tích tương tự (Tham khảo)
- Kết luận
Giới thiệu
Trong bối cảnh quỹ đất ngày càng hạn hẹp và chi phí xây dựng tăng cao, thiết kế nhà cấp 4 đẹp, chi phí thấp đang trở thành xu hướng được nhiều gia đình trẻ lựa chọn. Đặc biệt, với diện tích đất 5×14.5m, việc tối ưu không gian sống trở nên vô cùng quan trọng. Bài viết này sẽ cung cấp những tư vấn chi tiết và giải pháp thiết kế thông minh để bạn có thể sở hữu một ngôi nhà cấp 4 lý tưởng, đáp ứng đầy đủ nhu cầu sinh hoạt của gia đình.
Yêu cầu thiết kế
Gia đình trẻ thường có những yêu cầu thiết kế nhà đặc trưng, bao gồm:
- Không gian sống thoải mái, tiện nghi, đáp ứng nhu cầu sinh hoạt hàng ngày.
- Thiết kế hiện đại, tối ưu hóa diện tích sử dụng.
- Chi phí xây dựng hợp lý, phù hợp với khả năng tài chính.
- Có không gian riêng tư cho các thành viên trong gia đình.
- Đảm bảo ánh sáng tự nhiên và thông thoáng.
Giải pháp thiết kế nhà cấp 4 5×14.5m
Để đáp ứng những yêu cầu trên, chúng ta cần một giải pháp thiết kế thông minh và sáng tạo. Dưới đây là một số gợi ý:
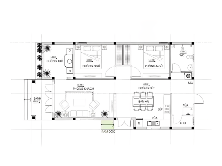
1. Mặt bằng công năng
Mặt bằng công năng là yếu tố quan trọng nhất trong thiết kế nhà. Với diện tích 5×14.5m, bạn có thể bố trí các khu vực chức năng như sau:
- Phòng khách: Đặt ở vị trí trung tâm, gần cửa ra vào, tạo không gian tiếp đón khách rộng rãi.
- Bếp và khu vực ăn uống: Thiết kế liền kề với phòng khách, tạo sự liên kết và thuận tiện trong sinh hoạt.
- Phòng ngủ: Bố trí ở phía sau nhà, đảm bảo sự yên tĩnh và riêng tư. Có thể thiết kế 2 phòng ngủ nhỏ hoặc 1 phòng ngủ lớn và 1 phòng ngủ nhỏ tùy theo nhu cầu sử dụng.
- Khu vực vệ sinh và giặt phơi: Đặt ở cuối nhà, phía sau phòng ngủ, đảm bảo sự kín đáo và tiện lợi.

2. Không gian mở liên thông
Thiết kế không gian mở liên thông giữa phòng khách, bếp và khu vực ăn uống là một giải pháp tuyệt vời để tạo cảm giác rộng rãi và thoáng đãng cho ngôi nhà. Thay vì xây tường ngăn cách, bạn có thể sử dụng các vách ngăn nhẹ, kệ trang trí hoặc quầy bar để phân chia không gian một cách tinh tế.
Phòng khách:



Khu vực bếp:


3. Phòng ngủ riêng tư, thoáng đãng
Phòng ngủ là không gian nghỉ ngơi và thư giãn của mỗi thành viên trong gia đình. Vì vậy, cần đảm bảo sự riêng tư, yên tĩnh và thoáng đãng. Sử dụng cửa sổ lớn để đón ánh sáng tự nhiên và gió trời. Bố trí đồ đạc gọn gàng, khoa học để tiết kiệm diện tích.
Phòng ngủ người lớn:


Phòng ngủ trẻ em:

Có thể thiết kế thêm khu vực học tập và lưu trữ đồ chơi cho trẻ em.
4. Nội thất hiện đại, tối ưu không gian
Lựa chọn nội thất thông minh, đa năng là giải pháp tối ưu cho nhà cấp 4 diện tích nhỏ. Sử dụng các loại tủ âm tường, giường có ngăn kéo, bàn ghế gấp gọn để tiết kiệm diện tích và tăng tính tiện nghi.


5. Khu vực vệ sinh và giặt phơi
Nên bố trí khu vực vệ sinh và giặt phơi ở cuối nhà, phía sau phòng ngủ. Đảm bảo sự thông thoáng và ánh sáng tự nhiên để tránh ẩm mốc. Có thể thiết kế thêm sân phơi nhỏ phía sau nhà hoặc trên mái (nếu có).

Lưu ý khi thiết kế và thi công
- Chọn vật liệu xây dựng: Ưu tiên các vật liệu nhẹ, bền, đẹp và có khả năng cách nhiệt tốt.
- Thiết kế hệ thống điện nước: Đảm bảo an toàn và tiện lợi trong quá trình sử dụng.
- Chú trọng đến yếu tố phong thủy: Bố trí các khu vực chức năng hợp lý để mang lại may mắn và tài lộc cho gia đình.
- Tìm kiếm đơn vị thiết kế và thi công uy tín: Để đảm bảo chất lượng công trình và tiến độ thi công.
Dự toán chi phí xây dựng
Chi phí xây dựng nhà cấp 4 5×14.5m phụ thuộc vào nhiều yếu tố như vật liệu xây dựng, nhân công, thiết kế nội thất… Để có dự toán chi phí chính xác nhất, bạn nên liên hệ với các đơn vị tư vấn xây dựng để được khảo sát và báo giá chi tiết.
Các mẫu nhà cấp 4 đẹp diện tích tương tự (Tham khảo)




Kết luận
Thiết kế nhà cấp 4 đẹp, chi phí thấp trên diện tích 5×14.5m không phải là điều không thể. Với những giải pháp thiết kế thông minh và sự lựa chọn nội thất phù hợp, bạn hoàn toàn có thể sở hữu một không gian sống thoải mái, tiện nghi và ấm cúng cho gia đình mình. Nếu bạn đang có nhu cầu tìm kiếm một đơn vị tư vấn thiết kế và thi công nhà ở uy tín, hãy liên hệ với AnPhatLand để được hỗ trợ tốt nhất.